Підібрати обладнання
автоматичний розрахунок комплекту обладнання для холодильної камери

У кошику порожньо!
Короткий опис
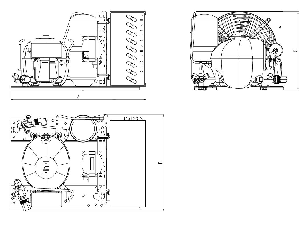
Компресорно-конденсаторні агрегати Embraco розроблені на основі надійних герметичних компресорів і сконструйовані так, щоб забезпечити довгий термін служби, високу ефективність і низький рівень шуму. Розроблені для викор... Читати далі...
Короткі характеристики
автоматичний розрахунок комплекту обладнання для холодильної камери
Написати в Viber
Написати в Telegram

| ------- | |
| Бренд | Embraco Aspera |
| Вага | 17,1 кг |
| Діаметр патрубків всмоктування | 3/8 ' |
| Діаметр патрубків нагнітання | 1/4 ' |
| Живленя | 220-240V / 50Hz / 1 ~ |
| Кількість вентиляторів | 1х230 мм |
| Конденсатор | 3 ряди х 9 труб |
| Основна характеристика cм³ | 6 см3 |
| Охолодження при tконд. + 45С, tкіп.-15С | 461 Вт |
| Охолодження при tконд. + 45С, tкіп.-20С | 366 Вт |
| охолодження при tконд. + 45С, tкіп.-25С | 289 Вт |
| Охолодження при tконд. + 45С, tкіп.-30С | 225 Вт |
| охолодження при tокр + 32С, tкіп.-23.3С | 369 Вт |
| Потужність | 1/2 к.с . |
| Ресивер | 1,1 л |
| Розміри | 435x308x254 мм |
| Серія | UEMT |
| Температурний режим | низькотемпературний |
| Тип двигуна | CSIR |
| Фреон | R404а, R507а |
Теги: Холодильний агрегат Embraco Aspera UEMT2125GK
